Umnutzung/Verkauf Gotthardstrasse

Beratung

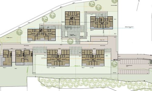
Muri

  • Standort- und Marktanalyse, Immobilien-Bewertung (in Varianten gem. Nutzungsszenarios)
  • Entwicklung einer leerstehenden Gewerbeliegenschaft zum multifunktional nutzbaren Anlageobjekt (Businesspark) unter Beizug Architekturbüro (Ausarbeitung baueingabereifes Projekt in Abstimmung mit den Behörden)
  • Organisation von Grundstückbereinigungen inkl. Arealarrondierung zwecks Verbesserung der Marktchancen
  • Marktauftritt und Verkauf inkl. Umsetzung aller sachenrechtlich relevanten Verträge
Beratung
Umnutzung/Verkauf Gotthardstrasse

AG gründenAktiengesellschaft kaufen Schweiz Blechverarbeitung und DrahtverarbeitungBrandabschottungenBrunnenbohrungenDigital Signage Displaylösungen massgeschneidert für Ihr UnternehmenEinbauschrank nach MassEinbauschrank nach Mass für GenerationenFirmenmantel verkaufenHochwertige Produkte für Gesundheit, Fitness und SchönheitHornetsecurity Offsite-Kopie (Cloud Backup).JVA Justizvollzugsanstalt BostadelKleiderschrank nach MassKüchenbau nach MassMauchle PoolMaurerMetalldeckenPermanent Make UpPlafondnova - Deckensysteme WandsystemeSanierungen und Umbau - Bau-Projektallianz GmbHSolaranlagen Schweiz LuzernStrassenbauer/inUnternehmenskommunikation Webdesign Luzern Sursee Zug ZürichWinkelplatten